Campus Maps &
Locations

Main Campus
200 North Washington Blvd
Ogden, UT 84404

Collette Mercier Campus
918 West 2nd Street, Building 10
Ogden, UT 84404

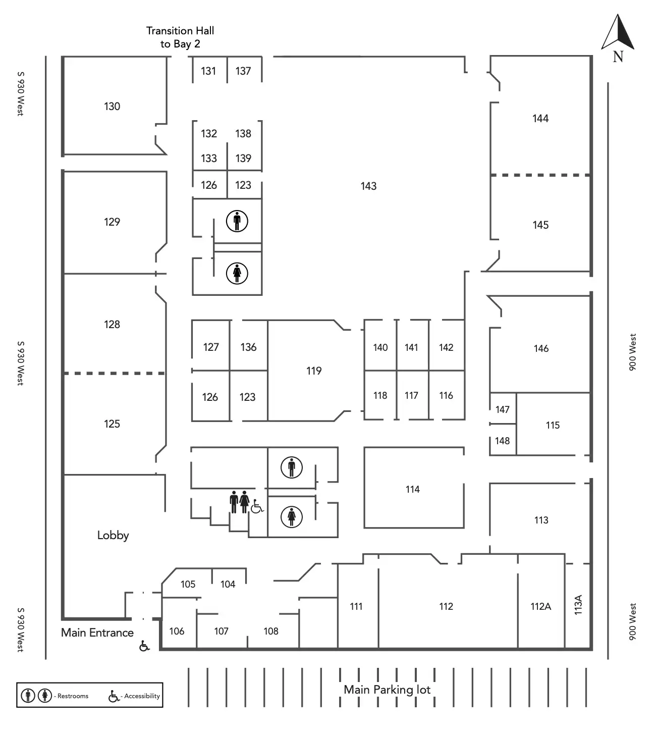
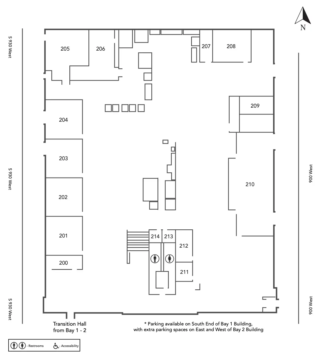
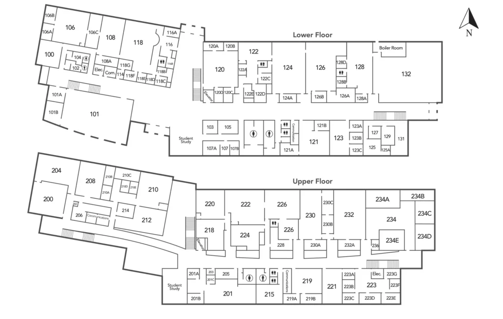
Building Maps